In evidenza Cod.: 806

42.000,00

  • Camere
  • 1
  • 40mq

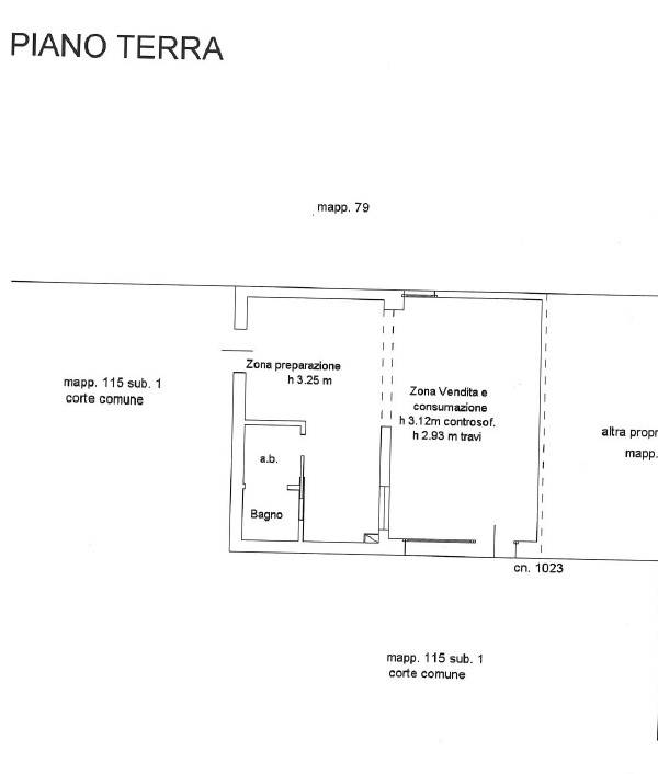
San Martino, Via Bologna. In posizione strategica, a pochi km da Ferrara e su strada di forte passaggio, proponiamo in vendita ottimo locale commerciale subito libero, precedentemente adibito a bistrot.
L'immobile, recentemente ristrutturato con ottime finiture, è diviso in due ambienti oltre a bagno e antibagno, risultando funzionale e ideale per diverse tipologie di attività. Infissi a taglio termico e aria condizionata.
E' presente un comodo parcheggio davanti all'ingresso e, nelle immediate vicinanze, la pista ciclabile collegata al centro di San Martino.
Ideale anche come investimento.
La descrizione e le foto sono solo indicative ed a scopo pubblicitario

Dettagli immobile
  • Metri quadri 40
  • Numero bagni 1
  • Totale piani 2
  • Numero piano Piano terra
  • Zona Ferrara
  • Risc. autonomo Autonomo

Richiedi informazioni

Informativa

Noi e terze parti selezionate (come ad esempio Google, Facebook, LinkedIn, ecc.) utilizziamo cookie o tecnologie simili per finalità tecniche e, con il tuo consenso, anche per altre finalità come ad esempio per mostrati annunci personalizzati e non personalizzati più utili per te, come specificato nella .
Chiudendo questo banner con la crocetta o cliccando su "Rifiuta", verranno utilizzati solamente cookie tecnici. Se vuoi selezionare i cookie da installare, clicca su "Personalizza". Se preferisci, puoi acconsentire all'utilizzo di tutti i cookie, anche diversi da quelli tecnici, cliccando su "Accetta tutti". In qualsiasi momento potrai modificare la scelta effettuata.