Cod.: 813

Trattativa riservata

  • Camere
  • 8
  • 700mq

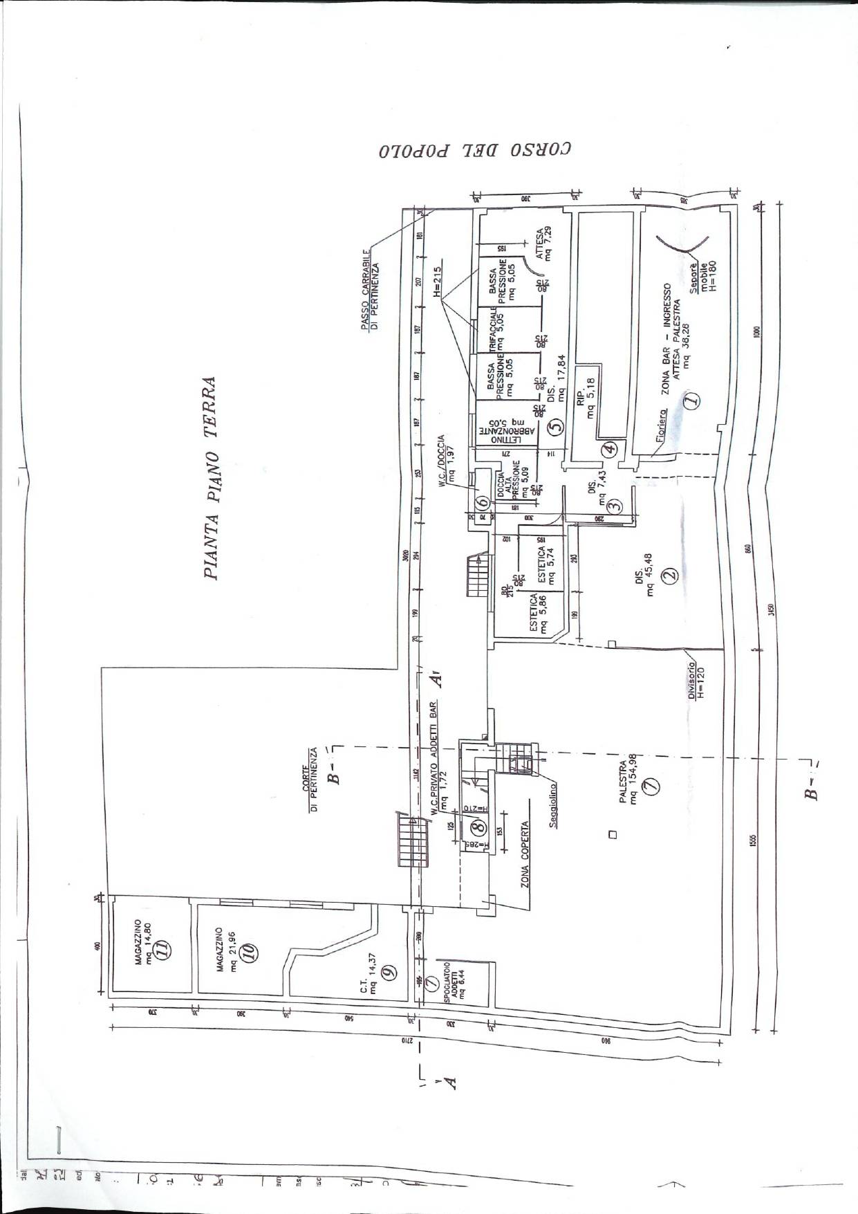
L'immobile, situato con vetrine fronte strada su una delle vie principali di Pontelagoscuro, è disposto su due livelli con corte, parcheggio e magazzini esterni.
Adibito per anni a palestra e area estetista è stato in parte ristrutturato; dispone di impianto elettrico da 50 Kwh, lucernari sostituiti, scala di sicurezza antincendio esterna con montascale.
Caldaia di recente installazione; split aria condizionata e pompa di calore nei vari ambienti.
Nel 2023 è stato rivisitato il tetto.
Nella corte c'è ampia possibilità di parcheggio: posti auto scoperti e coperti con tetto di recente installazione.
I molti locali di differente metratura si sviluppano al piano terra e primo piano, alcuni in open space, altri adibiti a uffici, spogliatoi, servizi igienici, bar.
L'immobile è libero e pronto alla vendita; al piano terra non sono presenti barriere architettoniche.
La struttura è interessante per chi intende riavviare un'attività sportiva oppure ad uso commerciale o uffici.

Gli arredi e le finiture nelle immagini hanno il solo scopo di illustrare dimensioni e proporzioni delle varie stanze.
La descrizione e le foto sono solo indicative ed a scopo pubblicitario

Dettagli immobile
  • Metri quadri 700
  • Numero bagni 8
  • Numero piano Su due livelli
  • Zona Ferrara
  • Risc. autonomo Autonomo

Richiedi informazioni

Informativa

Noi e terze parti selezionate (come ad esempio Google, Facebook, LinkedIn, ecc.) utilizziamo cookie o tecnologie simili per finalità tecniche e, con il tuo consenso, anche per altre finalità come ad esempio per mostrati annunci personalizzati e non personalizzati più utili per te, come specificato nella .
Chiudendo questo banner con la crocetta o cliccando su "Rifiuta", verranno utilizzati solamente cookie tecnici. Se vuoi selezionare i cookie da installare, clicca su "Personalizza". Se preferisci, puoi acconsentire all'utilizzo di tutti i cookie, anche diversi da quelli tecnici, cliccando su "Accetta tutti". In qualsiasi momento potrai modificare la scelta effettuata.