In evidenza Cod.: 816

450.000,00

  • 3 Camere
  • 3
  • 148mq

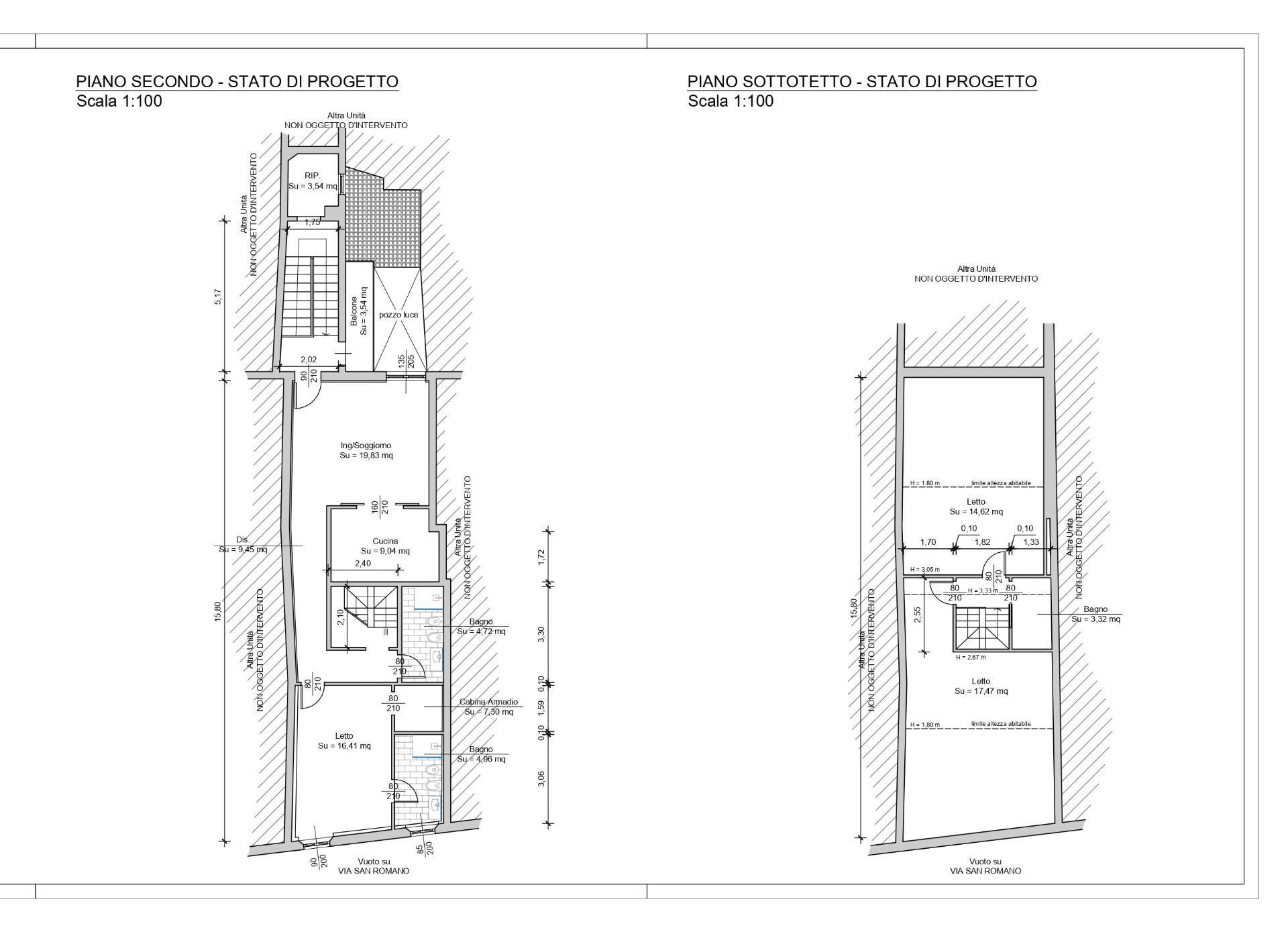
Centro storico- Via San Romano, in posizione privilegiata a brevissima distanza da P.zza Trento Trieste, proponiamo in vendita appartamento su due livelli integralmente ristrutturato e pari al nuovo.
Ingresso dal secondo piano di piccola palazzina, l'appartamento vanta spazi comodi e molto fruibili:
Ingresso diretto su ampia e luminosa zona pranzo/soggiorno, cucina separata; corridoio a servizio della prima camera da letto matrimoniale al piano dotata di bagno en suite e cabina armadio; secondo bagno di servizio per gli ospiti.
Dalla scala interna si accede ad una spaziosa mansarda sapientemente divisa per creare due camere da letto matrimoniali dotate di finestrature velux; al piano è presente il terzo bagno.
L'appartamento verrà finito direttamente dall'impresa, con finiture moderne ed isolamenti in linea con gli standard attuali per quanto riguarda isolamento termo acustico; materiali di alto pregio.
Riscaldamento autonomo con caloriferi ed impiantistica completamente nuova.
Completa al pian terreno il deposito cicli comune.

LE FOTO SONO RENDER CREATI CON L'A.I. AL SOLO SCOPO DI SPIEGARE GLI SPAZI
La descrizione e le foto sono solo indicative ed a scopo pubblicitario

Dettagli immobile
  • Metri quadri 148
  • Numero bagni 3
  • Totale piani 3
  • Numero piano Su due livelli
  • Camere 3
  • Zona Ferrara
  • Risc. autonomo Autonomo

Richiedi informazioni


Potrebbero interessarti anche:

Informativa

Noi e terze parti selezionate (come ad esempio Google, Facebook, LinkedIn, ecc.) utilizziamo cookie o tecnologie simili per finalità tecniche e, con il tuo consenso, anche per altre finalità come ad esempio per mostrati annunci personalizzati e non personalizzati più utili per te, come specificato nella .
Chiudendo questo banner con la crocetta o cliccando su "Rifiuta", verranno utilizzati solamente cookie tecnici. Se vuoi selezionare i cookie da installare, clicca su "Personalizza". Se preferisci, puoi acconsentire all'utilizzo di tutti i cookie, anche diversi da quelli tecnici, cliccando su "Accetta tutti". In qualsiasi momento potrai modificare la scelta effettuata.