Cod.: 794

3.000,00

  • 2500mq

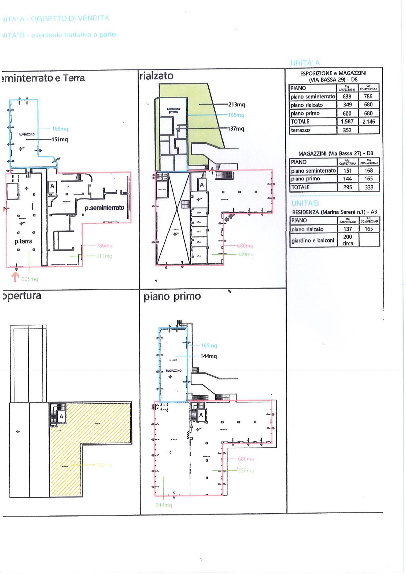
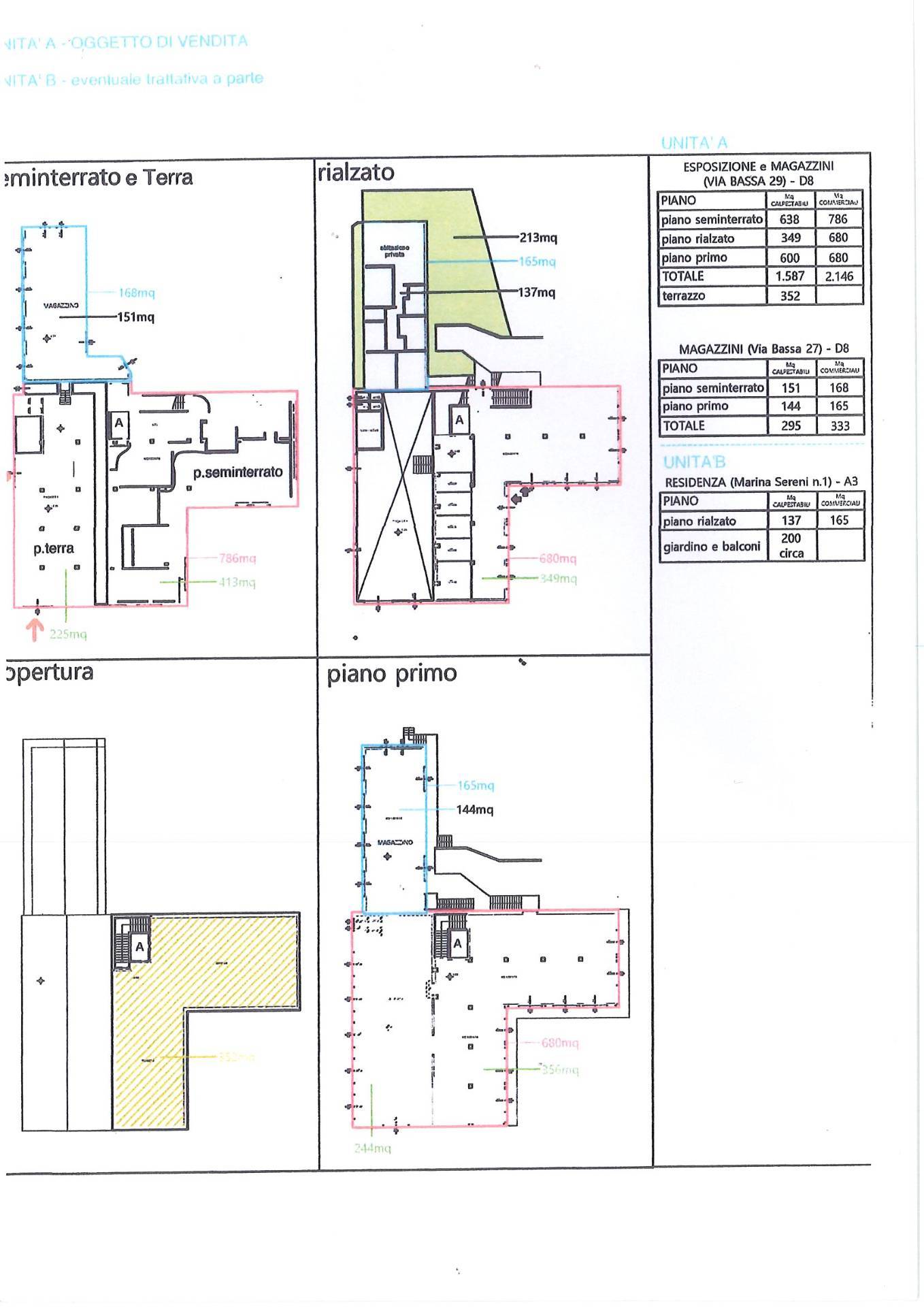
Santa Maria Maddalena, a brevissima distanza da Ferrara ed in posizione comoda per raggiungere la città di Rovigo, proponiamo in vendita capannone commerciale di quasi 2.500 mq. (accatastato D/8) ideale per attività espositiva, organizzato internamente su due livelli oltre a piano interrato.
Dotato di grandi altezze di circa 4 mt. e due portoni di accesso scorrevoli, l'immobile si presenta in ottimo stato di manutenzione.
Servito da capiente montacarichi (2.30 X 3.50) con entrata/uscita su tutti i livelli interni, impianto di riscaldamento canalizzato ad aria e struttura a pilastri in cemento armato; impreziosito da ampie vetrate antisfondamento al piano rialzato e primo protette da frangisole in alluminio.

Impianto elettrico e di riscaldamento a norma con differenziali su ogni piano.
Sempre al piano rialzato dispone di cinque uffici con pareti vetrate già approntati e pronti all'uso.
La copertura piana di circa 350 mq. in ottimo stato, funge anche da grande terrazza.

Pavimentazione in gres su tutti i piani, sulla quale è stato sovrapposto laminato a doghe effetto legno; tramezzature interne in cartongesso che possono essere rimosse a seconda delle esigenze.
Sul fronte del fabbricato, un ampio piazzale carrabile con pavimentazione in autobloccante (circa 20 posti auto).

L'immobile con la sua vasta metratura si presta a diversi tipi di utilizzi:
- Poliambulatori
- Cambio destinazione d'uso in residenziale per realizzazione di più unità abitative

Prezzo d'occasione per coloro che sono alla ricerca di un grande spazio espositivo all'interno di centro abitato e comodissimo alle principali vie di comunicazione; posizione invidiabile con ampia visibilità, in strada di forte passaggio. L'immobile è disponibile anche alla locazione (3.000€/mese).

Inoltre, sempre della stessa proprietà adiacente il capannone, vi è la possibilità di acquisto con prezzo a parte di un' abitazione residenziale di circa 180 mq, distribuita tutta al piano rialzato con scoperto privato.
Pertinenziale alla casa un magazzino di oltre 160 mq. ad uso garage ed ulteriore ampio locale show room al piano superiore di altri 180 mq..
La descrizione e le foto sono solo indicative ed a scopo pubblicitario

Dettagli immobile
  • Metri quadri 2500
  • Totale piani 3
  • Numero piano Piano terra
  • Zona Occhiobello
  • Risc. autonomo Autonomo

Richiedi informazioni

Informativa

Noi e terze parti selezionate (come ad esempio Google, Facebook, LinkedIn, ecc.) utilizziamo cookie o tecnologie simili per finalità tecniche e, con il tuo consenso, anche per altre finalità come ad esempio per mostrati annunci personalizzati e non personalizzati più utili per te, come specificato nella .
Chiudendo questo banner con la crocetta o cliccando su "Rifiuta", verranno utilizzati solamente cookie tecnici. Se vuoi selezionare i cookie da installare, clicca su "Personalizza". Se preferisci, puoi acconsentire all'utilizzo di tutti i cookie, anche diversi da quelli tecnici, cliccando su "Accetta tutti". In qualsiasi momento potrai modificare la scelta effettuata.